Dwie hale produkcyjno-magazynowe przy DK 801
Warszawice gm. Sobienie-Jeziory Pokaż na mapie ›
Dodane: Czwartek, 12 Luty, 2026 13:56
58 500 zł
Szczegóły ogłoszenia
- Kategoria: Biura i lokale / Do wynajęcia
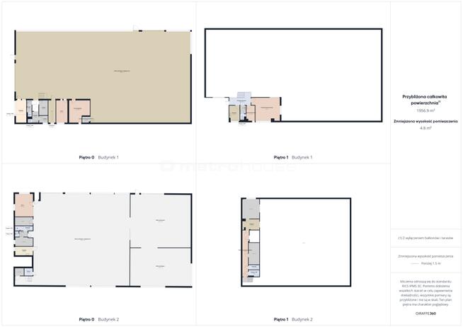
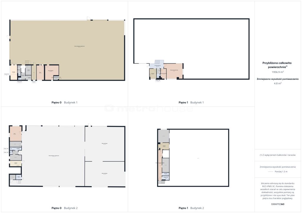
- Powierzchnia:2000 m2
- Sprzedaż:Pośrednik
- Cena: 58 500 zł
Opis oferty
Hale przemysłowo-magazynowe gmina Sobienie-JezioryNowoczesna przestrzeń dla produkcji, logistyki i składowania zaledwie 26 km od Warszawy
W południowej części Mazowsza, w gminie Sobienie-Jeziory, tuż przy trasie DK 801, znajduje się kompleks dwóch hal przemysłowo-magazynowych o parametrach idealnych dla firm produkcyjnych, logistycznych oraz dystrybucyjnych. Obiekt położony jest na terenie ogrodzonym, z szerokimi placami manewrowymi i pełną infrastrukturą techniczną, dzięki czemu stanowi gotowe i bezpieczne zaplecze do prowadzenia działalności.
Lokalizacja to jeden z głównych atutów nieruchomości. Dojazd do Warszawy zajmuje niespełna pół godziny, a od granic administracyjnych miasta dzieli obiekt jedynie 26 km. W bezpośrednim sąsiedztwie przebiega droga krajowa 801, umożliwiająca bezproblemową komunikację zarówno z Warszawą od północy, jak i z Puławami oraz Lublinem od południa. Do Otwocka jest zaledwie 17 km, do Puław 42 km, natomiast do Lublina 105 km. Dzięki temu miejsce doskonale sprawdza się jako punkt logistyczny obsługujący południowe Mazowsze oraz kierunek lubelski.
Charakterystyka hal
Kompleks składa się z dwóch nowoczesnych hal o konstrukcji stalowej, wyposażonych w szerokie bramy wjazdowe przystosowane do obsługi samochodów ciężarowych. Wnętrza posiadają dużą wysokość roboczą, szeroki rozstaw słupów oraz wytrzymałą posadzkę, co umożliwia intensywne operacje magazynowe lub produkcyjne.
W obiekcie znajdują się również:
pomieszczenia socjalne dla pracowników,
część biurowa z oknami na halę, zapewniająca stałą kontrolę nad procesami,
strefy warsztatowe i miejsca do obsługi maszyn,
regały i przestrzenie do składowania długich elementów,
świetliki dachowe i nowoczesne oświetlenie, gwarantujące doskonałą widoczność.
Przestronny, utwardzony plac pomiędzy halami zapewnia swobodę manewrowania TIR-ów oraz możliwość składowania materiałów zewnętrznych.
Infrastruktura techniczna
Obiekt jest w pełni przygotowany do działalności przemysłowej:
instalacje elektryczne, wodno-kanalizacyjne i ogrzewanie,
monitoring i zabezpieczenia przeciwpożarowe,
ogrodzenie i kontrola dostępu,
szatnie, zaplecze sanitarne i jadalnia,
wygodny dojazd dla samochodów ciężarowych,
możliwość podłączenia maszyn wymagających większego poboru mocy.
Całość jest zadbana i gotowa do użytkowania nie wymaga dodatkowych inwestycji.
Najważniejsze zalety
To miejsce będzie idealnym wyborem dla firm, które poszukują:
doskonałej komunikacji z Warszawą oraz południową częścią regionu,
hali gotowej zarówno pod magazyn, jak i lekką produkcję,
kompletnego zaplecza socjalno-biurowego,
przestrzeni zapewniającej możliwość rozwoju,
miejsca, do którego można wejść i pracować od razu.
Kompleks w gminie Sobienie-Jeziory łączy funkcjonalność, dobrą infrastrukturę i strategiczną lokalizację to idealna baza dla firm dynamicznie obsługujących Mazowsze i kierunek lubelski.
Czy wiesz, że możemy przygotować dla Ciebie prezentację on-line nieruchomości? Skontaktuj się z naszym Agentem i zapytaj o szczegóły.
Pomimo, iż Doradcy Metrohouse przykładają szczególną staranność do rzetelnego prezentowania informacji o nieruchomości, nie zawsze jest możliwa weryfikacja wszystkich danych przekazanych od osób trzecich. Niniejsza prezentacja oferty nie jest ofertą w rozumieniu Kodeksu Cywilnego i ma charakter wyłącznie informacyjny.
Sprawdź zainteresowanie tym ogłoszeniem
Wyświetlenia
Data dodania
Ostatnio widziany
Obserwujących
Wysłane zapytania
Odsłony telefonu
Powiadom o podobnych ogłoszeniach
Lokalizacja: Warszawice
Kategoria: Nieruchomości » Biura i lokale » Do wynajęcia
Cena: od 49500 zł do 67500 zł Powierzchnia : od 1700 m2 do 2300 m2
Chcę otrzymywać powiadomienia o nowych ofertach
- Wypromuj ogłoszenie
- Zgłoś naruszenie
- Drukuj ulotkę
- Edytuj/usuń ogłoszenie
- Udostępnij ogłoszenie
- Dodaj na Facebook
































